Overview of Services
A former architect, Marc of Skia Design has been in the business of providing inspiring home plans and professional design and drafting services at affordable rates to satisfied homeowners and builders in a number of regions throughout the United States for more than 20 years.
The building process is undoubtedly a difficult maze to navigate. Planning ahead is critical for a successful outcome. Marc can help you navigate the maze with a full range of services, including:
All aspects of custom design of new homes, additions and remodels, whether starting from a simple idea, a napkin sketch, a stock plan needing modification, or your own plans needing just that extra bit of help
Construction documents which meet all code requirements, allowing you to obtain a building permit with as little hassle as possible
Construction observation to ensure you are getting the home you are paying for
Site Selection and Analysis to make the most of your home and land
3D CAD modeling techniques utilizing Vectorworks® software to help you visualize the design with Fly-over, Walk-through, and Animation tools, beginning with Site Analysis in the early stages of the design process
Energy efficient design strategies
Age- and handicap-related design per ADA standards for accessibility
Contractor recommendations and selection—Marc regularly works with some of the best
Braced Wall Analysis—absolutely essential for obtaining a building permit these days
Subdivision planning
In addition Marc can provide small commercial and mall storefront design
Initial consultations are almost* always free of charge and Marc is happy to steer you in the right direction—even if that means helping you find a better way to accomplish your building goals without further help from him. He tries his best to live out the Golden Rule in all he does.
* Marc may invoice in whole or in part for the initial consultation, usually based on travel distance when meeting at a distant site, and whether he uses his expertise in providing potential design concepts or solutions during the meeting.
Full Custom Home Design
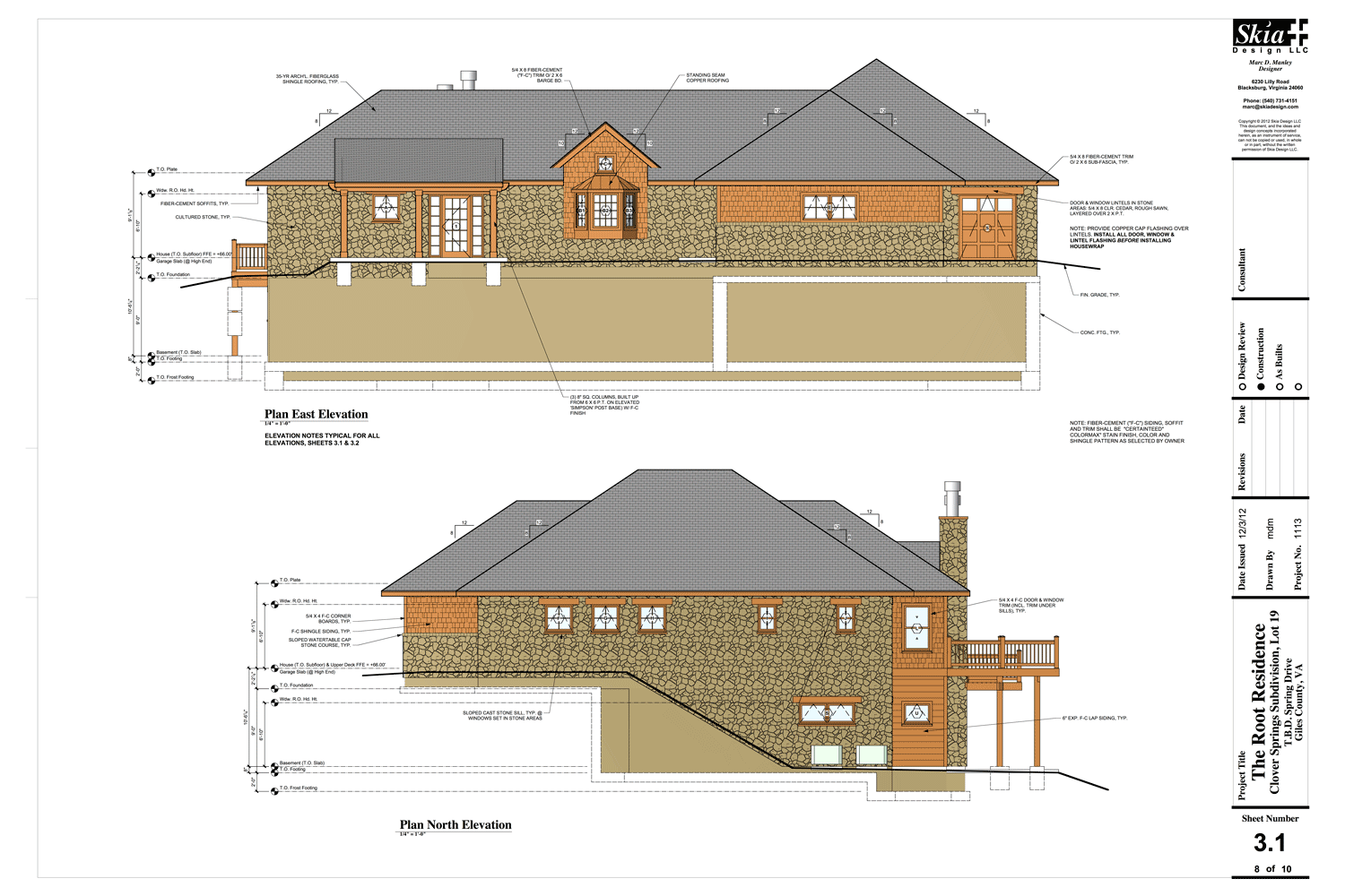
Construction Drawing—Elevations
Starting with your dream home ideas, Marc will walk with you step by step through the design process to the point of drafting Construction Documents (also called “House Plans,” “Blueprints,” “Building Plans,” etc.) suitable for obtaining both competitive bids and a building permit in your locale. Your new home will be designed to the architectural style of your choice, whether it's cottage, bungalow, colonial, craftsman, country, farmhouse, mountain, lodge, rustic, Tuscan, Tudor, Southwestern, modern, contemporary, or an eclectic blend such as the example shown.
As designer Marc does not impose his own artistic sensibilities on you the client. Rather, he lets you guide the art, seeing his primary role as Collaborating Servant, recognizing the trust and financial investment being placed in him. To be sure, he will speak honestly when he sees a poor design suggestion, but at the end of the day he knows that it is your house he's helping you design, not his own.
Every project presents completely unique problems and challenges, and Marc is always eager to help find the solutions that will inspire and delight you.
Second Story Added to Existing Single-Story Home
New Additions and Remodels
From basement upfits to second floor additions, each project is approached with the same gusto as with new custom homes, using a design process similar to new home custom design. Giving clients elegantly workable and livable solutions to their space and use problems is just plain fun!
Stock House Plans & Conceptual Design
Skia Design has produced a number of new home plans which would look great in a plan book and might work well for you. In fact some of Marc's custom plans have been adapted to other clients' needs. Plans are made available for reuse under one of three circumstances: A) through the use of Skia's services for adaptation to a known site, B) selling the right to use the plans for individual projects in which a known and reputable designer or licensed professional is involved in adapting the plans to a specific site, or C) selling just concept plans and sketches with authorization for a local designer or other agent of the owner to develop into construction documents. Due to copyright protection issues the house plans of Skia Design remain unpublished. Contact Marc for more information.
Stock House Plan Modifications
Sometimes prospective clients start with stock home plans they found online or in a plan book. Usually the expressed attitude is, “Well, we sort of like this, but there are some things which need to be changed.” Glad to assist, Marc evaluates the plans keeping two issues in mind: the extent of the proposed changes and copyrights. With regard to the first, in many cases the changes are relatively minor and can be taken care of directly with a builder and the local Building Inspector, without Skia Design's involvement. Concerning the second issue, out of respect for the law and fellow designers Marc will not participate in violating others’ copyrights. If the changes are significant and copyright infringement is clearly not an issue (for example, the client obtains a release to use the plans from the originating designer) he will happily take on the project.
Existing Home by Others
Marc believes that almost all stock house plans need to be customized, if for no other reason than that the site dictates it. Pictured here is an addition design project which illustrates the point. Note the before photo of the home, which undoubtedly started as a stock plan. The home, as a ranch with some 1/2 story bonus room space, was clearly designed with a flat lot in mind. However, due to the steep front yard and cross slope, the garage has been placed uncomfortably low with respect to the bonus room above. The client intuitively knew that the facade was highly unbalanced. Something needed to be done with that huge expanse of brick between the garage door and the upper window. The proposed scheme addressed this problem with a polycarbonate and steel awning in connection with a bold new Entry and Great Room used to more properly balance the facade.
Proposed Modification to Stock Plan Home
Contractors & Developers
Marc has worked and continues to work directly with and for builders and developers, providing spec home plans, custom home, remodeling, and addition plans, concept sketches for them to show their clients, etc. He also assists builders with prescriptive path lateral wall bracing analysis, and informs them when a licensed professional engineer will be required for more complex structural configurations.
Further, because Marc has developed relationships with a number of the better local builders, he will be able to help steer you to just the right builder to suit your needs—if building anywhere in the vicinity of the New River Valley.
Subdivision Planning
Many developers and builders go straight to a Civil Engineer when laying out a subdivision. One of Marc's favorite things to do is walk a site with a client to find just the right spot for the home, letting the site speak to them about where it belongs. This same sensitivity can be applied on a subdivision level. Skia's services can be value-added to the very necessary work of the engineer, as Marc approaches a site with an artistic eye and a sensitivity to the aesthetics and preservation of natural surroundings. The Sylvan Croft subdivision in downtown Blacksburg represents an example of such work.
Small Commercial Design
Given Marc's design experience and the laws governing when and where licensed professionals are required, he is able to provide design services for small office buildings, churches, private schools, mall storefronts, etc. Depending on the scope of work and the laws of your jurisdiction, collaboration with a local licensed professional of your choosing may be required. Marc has worked under this arrangement in developing the concept plans and elevations for a local private school. Contact Marc to discuss your project.
